Exclusiva Moradia T2 Isolada em Condomínio Fechado, perto da Lagoa de Óbidos

360 000€

  • 3
  • 2
  • 3
  • Útil: 81m2
  • Bruta: 98m2
  • C.E.: C
  • Ano: 2008
  • Ref: 66253-MCGO62638

Localização

Leiria, Óbidos, Santa Maria, São Pedro e Sobral da Lagoa, Arelho

Videos

VR Tour

Descrição

É com elevada distinção que se apresenta esta notável moradia T2 isolada, situada em prestigiado condomínio fechado na serena localidade de Arelho. Esta propriedade representa o equilíbrio perfeito entre conforto, privacidade e proximidade com a natureza envolvente.

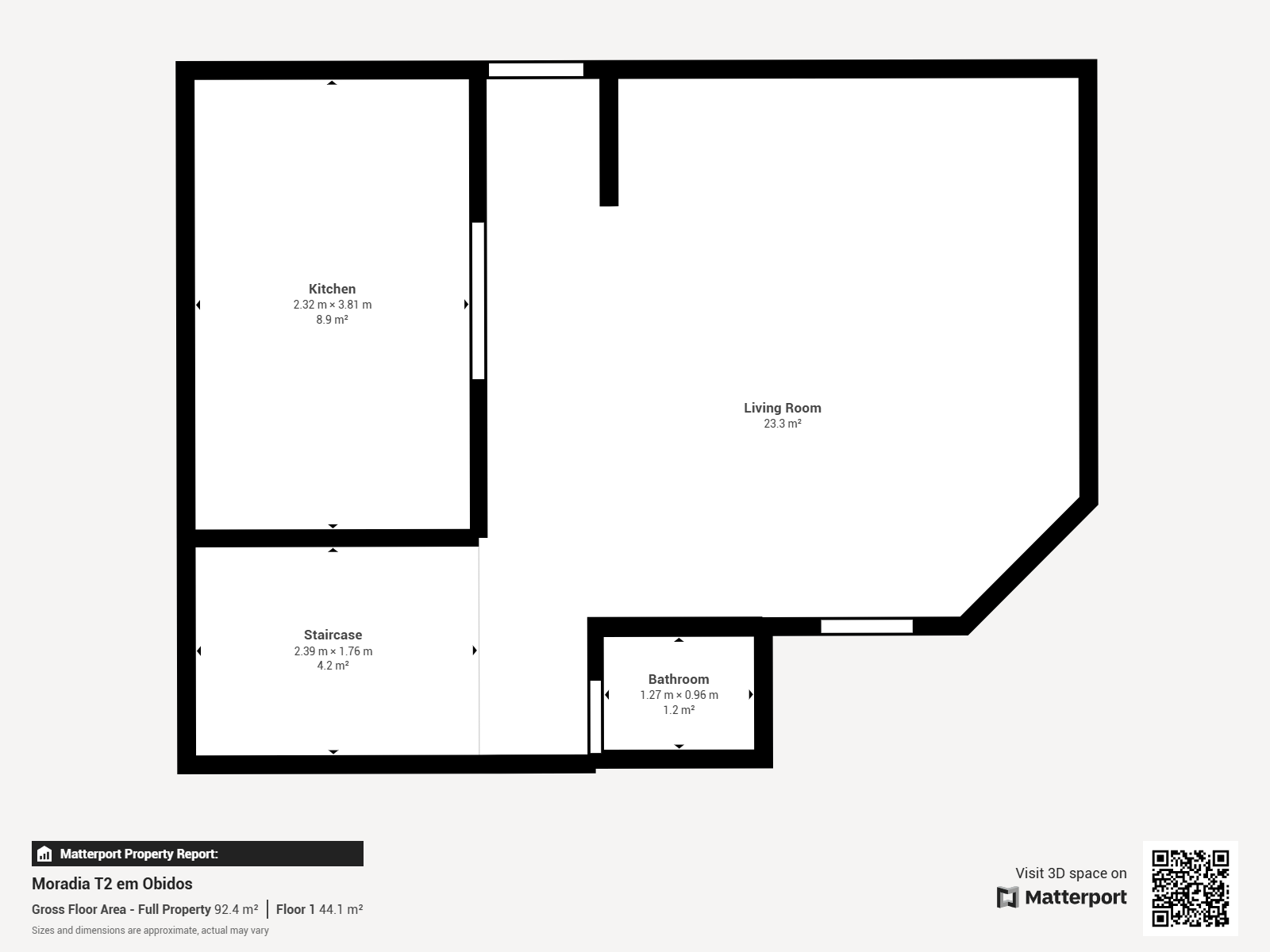
A moradia desenvolve-se em dois pisos cuidadosamente distribuídos. No piso térreo, encontra-se uma ampla sala de estar, dotada de lareira com recuperador de calor, ideal para criar um ambiente acolhedor nas tardes de Inverno. A cozinha, inteiramente equipada com eletrodomésticos, revela-se bastante funcional. Neste piso, destaca-se ainda uma casa de banho social.

No primeiro piso localizam-se dois quartos de repouso, ambos generosamente dimensionados, sendo ambos suíte, provida de casa de banho privativa. Esta zona foi concebida para oferecer máxima serenidade e conforto.

No exterior, a moradia dispõe de espaço privativo, área de lazer com churrasqueira, e acesso direto à piscina privada da moradia — ideal para desfrutar dos dias soalheiros em pleno. A propriedade beneficia ainda de lugar de estacionamento exclusivo e apresenta uma excelente exposição solar ao longo de todo o dia.

A localização é outro dos seus trunfos: a escassos minutos da idílica Lagoa de Óbidos, onde a natureza se revela em todo o seu esplendor, e a curta distância da pitoresca vila medieval de Óbidos, celeiro de cultura e história. A moradia encontra-se bem servida por rede de transportes públicos, facilitando o acesso a serviços, escolas e principais vias rodoviárias.

Esta é uma oportunidade rara para quem deseja aliar tranquilidade, conforto e prestígio numa só morada.

Se desejar adaptar o estilo para uma brochura imobiliária ou para publicação em plataformas online, posso também ajustar o texto para um tom mais direto ou comercial.

Atributos

  • Condomínio fechado
  • Janelas vidro duplo
  • Máquina lavar loiça
  • Cozinha Equipada
  • Máquina lavar roupa
  • Animais de estimação permitidos
  • Arrecadação
  • Estacionamento incluído
  • Internet (WiFi)
  • Lareira
  • Varanda
  • Parqueamento exterior
  • Churrasqueira
  • Vista de Campo/Serra
  • Água Canalizada
  • Vista Desafogada
  • Local sossegado
  • Suite
  • Boa Exposição Solar
  • Roupeiro embutido

Divisões

Plantas

Nome do piso: Piso 0

Divisão Área Nota
Sala
Cozinha
WC
Piscina
Terraço

Nome do piso: Piso 1

Divisão Área Nota
Suite
Suite